NAZIM VE UYGULAMA İMAR PLANI DEĞİŞİKLİĞİ (HALİLİYE - PAŞABAĞI)
İ L A N
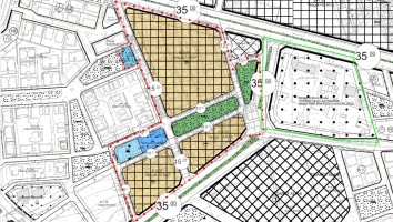
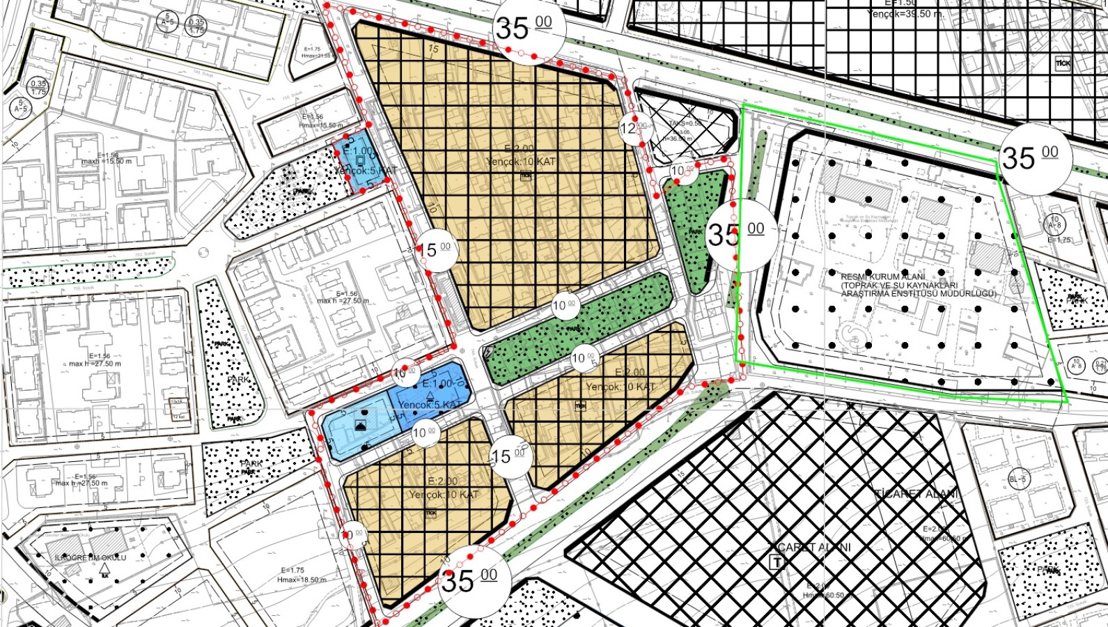
İlimiz Haliliye İlçesi Paşabağı Mahallesi Kentsel Dönüşüm ve Gelişim Proje Alanında hazırlanmış 1/5000 ölçekli Nazım İmar Planı Değişikliği ve 1/1000 ölçekli Uygulama İmar Planı Değişikliği teklifi Büyükşehir Belediye Meclisinin 09.09.2025 tarih ve 305 sayılı kararı ile onaylanmıştır.
3194 sayılı İmar Kanunu’nun 8/b maddesi ve Mekânsal Planlar Yapım Yönetmeliğinin 33. Maddesi gereğince 1/5000 ölçekli Nazım İmar Planı Değişikliği ve 1/1000 ölçekli Uygulama İmar Planı Değişikliği Şanlıurfa Büyükşehir Belediyesi web sitesinde ve İmar ve Şehircilik Daire Başkanlığı Planlama Şube Müdürlüğünün girişindeki ilan tahtasına asılmak suretiyle ilan edilmiştir.
Sayın halkımıza duyurulur. 23/09/2025
Eklenme Tarihi: 23.09.2025 16:50
Güncellenme Tarihi: 23.09.2025 16:50

